日期:
  液压站
  电液推杆
  电动推杆
  电液动回转器(转角器)
  液化气动可变槽角犁式卸料器
  电液动三、四通分料器
  电液动扇形闸门
  电液动腭式闸门
  平板闸门
  电液动料流插板调节闸门
  缓冲锁气漏斗
  胶带自控液压拉紧装置
  全自动液压调正装置
  露天胶带机脱排水装置
  称量漏斗
  自控除尘卸料装置(卸料车)
  碎渣机
  启闭机
  电液动矩形单叶片通风蝶阀
  星形卸灰阀
  电液动氏金属硬密封卸灰阀
  电液动锥形双层卸灰阀
  防爆阀
  泄压阀
  单、双层棒条阀
  电动锁风翻板阀
  重锤式锁风翻板阀
  百叶圆式窗式阀
  浆液阀(手动、电液动)
  电液动闸阀
  高温蝶阀
  电液动蝶阀
  电液动两路换向阀
  电液动球阀
 
  技术资料 Technology material

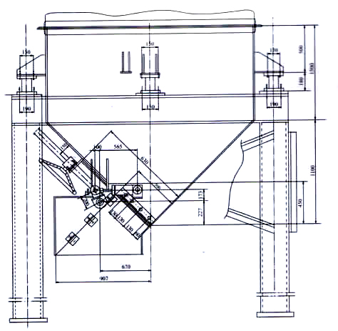
量 漏 斗

概述
  本公司在消化吸收国内外先进技术和多年现场实践的基础上,自行研制出了焦碳、杂矿、槽下、中间溜槽等各种规格、型号的称量漏斗,机、电、 液、仪一体,手动、液动两用,结构简单、动作灵活,目前已成功应用于冶金、矿山、电力、建材、煤炭等行业。

工作原理
  漏斗载料达到规定要求时 , 传感器发出信号至液压系统,系统动作,驱动单个或多个油缸,打开闸板,从而实现定量卸料。
外形示意图


<<<上一页          下一页>>>
 
产品导航:
电液推杆电动推杆,电液动回转器,电液动三通分料器电液动四通分料器电液动平板闸门卸灰阀电液动腭式闸门电液动扇形闸门
电话:0514-84716208 地址:江苏省高邮市汤庄镇工业集中区

版权所有:扬州创捷机械有限公司  技术支持:扬州天利网络技术开发有限公司